Parceria do Estado e prefeitura vai construir nova ponte em Nova Esperança do Sudoeste 18/03/2025 - 13:17
Estrutura sobre o Rio Jarcatiá será erguida a partir de um terno de cooperação e vai substituir a ponte original destruída pelas fortes chuvas de 2023.
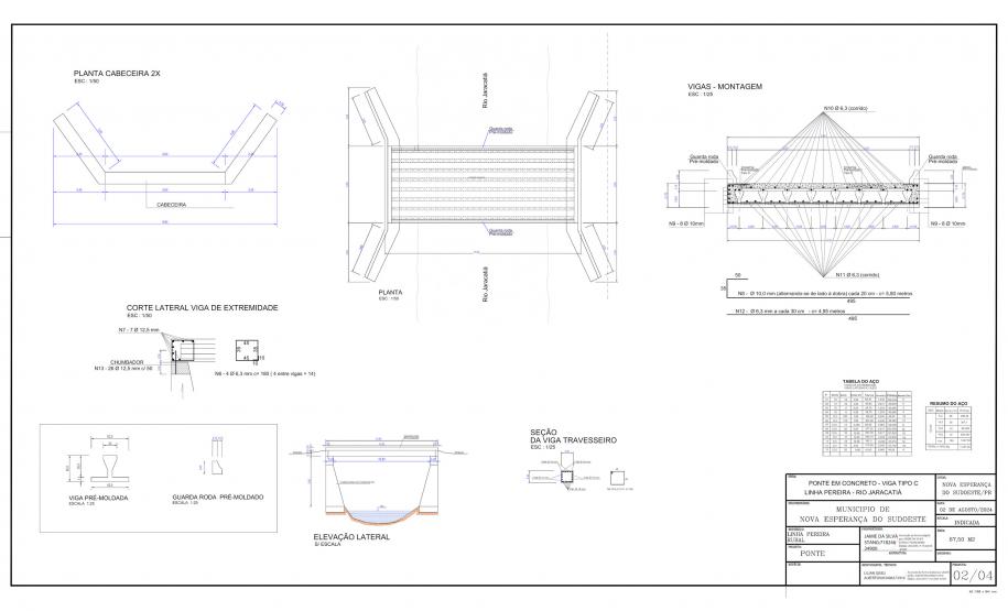
A Secretaria de Infraestrutura e Logística (SEIL) do Paraná e o município de Nova Esperança do Sudoeste, na região Sudoeste, assinaram um termo de cooperação para construir uma nova ponte sobre o Rio Jarcatiá. Ela vai ficar ao lado de uma estrutura provisória construída pela prefeitura, após a original ter sido destruída pelas fortes chuvas no final de 2023.
A SEIL vai fornecer oito vigas de concreto armado com 13,5 metros de comprimento, 88 lajotas de concreto de 100 cm x 50 cm, e 26 guarda-rodas de concreto com um metro de comprimento. Os materiais são montados em uma fábrica de vigas em Ponta Grossa, gerenciada pelo Departamento de Estradas de Rodagem do Paraná (DER/PR), cabendo ao município fazer a retirada e transporte.
Nova Esperança do Sudoeste também ficará encarregada de realizar os serviços no local da obra, como a preparação das cabeceiras e a as fundações, lançamento das vigas e concretagem das lajotas, entre outros. O andamento dos trabalhos será acompanhado pelo DER/PR.
A ponte terá 13,9 metros de comprimento por 5 metros de largura, atendendo o deslocamento de veículos de passeio, veículos pesados e transporte escolar. Além de beneficiar cerca de 34 famílias que vivem na região, ela também liga estradas municipais entre Nova Esperança do Sudoeste e Enéas Marques.
O prazo de execução do termo de cooperação vai até junho, podendo ser prorrogado conforme a necessidade.












